page contents

2013年5月24日 星期五

夢想市-昌益建案









夢想市

HOME FOR ALL
全齡化公設,夢想新生活

                                                          A 四季 迎賓大廳
                                       B 米其林 多功能廚藝教室
                                       C 氛享 戶外LOUNGE BAR
                                       D 城市物語 中庭花園
                                       E 香草天空 露天SPA戲水池
                                       F 帕坦珈利 瑜珈室
                                      G 阿基里斯 健身房
                                      H 童樂會 兒童遊戲區
                                       I   綠活 資源回收室
  • 建設公司:昌益建設
  • 門牌地點:龍山西路/立鵬路
  • 周邊路寬:立鵬路路寬15米、龍山西路路寬20米、慈雲路路寬30米
  • 基地面積:未知
  • 總共戶數:住387戶
  • 樓層規劃:27樓甲乙棟(慈雲路)/25樓丙丁(立鵬路)/地下4層
  • 房間規劃:4房
  • 規劃坪數:47,56,57,68,86坪
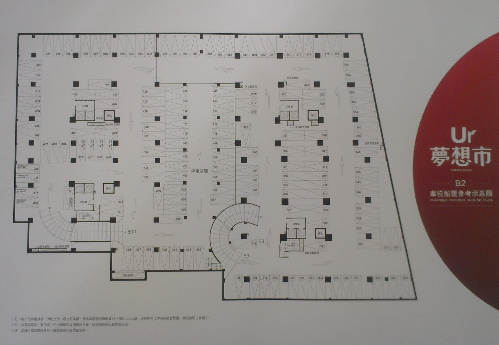
  • 車位設計:平面車位
  • 車位價格B1車位150,145,135  / 第2個120萬
                        B2車位140,135,125  / 第2個110,105萬
                        B3車位130,125,115  / 第2個100,95萬
                        B4車位120,115,105  / 第2個90,85萬
  • 車位數量:556
  • 進出車道:立鵬路
  • 使用分區:商二
  • 樓層挑高:3.5米,消防管下淨高3米/樓板厚度15公分
  • 建材1.玻璃5mm+5mm
                2.義大利STOSA廚俱
                3.TOTO免治馬桶,衛浴
                4.房爆門+義大利西薩鎖
                5.義大利BEST頂級倒T抽油煙機+2口爐
                6.林內烘碗機
                7.美國杜邦人造石
                8.客餐廳,走道,廚房80x80拋光,室內60x60拋光
                9.當層排氣
              10.E-home智慧居家
              11.全棟式生活淨水
              12.日本KYB首席制震系統
  • 備註:
  1. 四房設計,最大戶為乙棟面慈雲路
  2. 向為東西向設計
  3. 面綠帶棟別,側邊主臥室有開窗
  4. 中庭棟距約18-19米
  5. 兩棟之間棟距約4.9到5.6米
  6. 最小坪數47,45坪面自由曲線,跟中庭













中繼層機電室位於13樓


 中繼層水箱位於14樓


柏亘學習札記

http://he30232.blogspot.tw/
E-mail: he30232@gmail.com
FACEBOOK: https://www.facebook.com/he30232
LINE: he30232
聯絡電話: 0928627095




Related Posts Plugin for WordPress, Blogger...